Toggle navigation
Philosophie
Leistungen
Team
Projekte
Gutachter
Energieberatung
Links
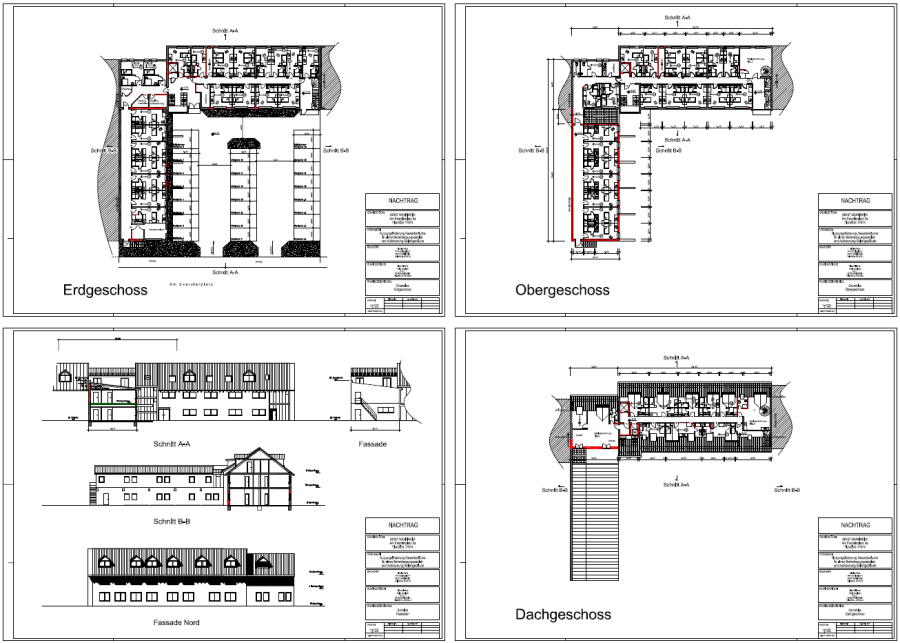
Hotel "Am Exerzierplatz", Am Exerzierplatz 4, Mannheim
Du bist hier:
Startseite
Projekte
Hotel Am Exerzierplatz Am Exerzierplatz 4 Mannheim
Alarm- und Einsatzplan für das Hotel "Am Exerzierplatz", Am Exerzierplatz 4, Mannheim
Projekte
Soccerhalle mit Indoorspielplätzen, Saarburger Str. 21, Ludwigshafen
Einfamilienhaus, Abt-Knittel-Straße 78, Niedernhall
Mansarddach Friedrichstr. 12, Mannheim
Mehrfamilienwohnhaus, Friedrichstraße 65, Mannheim
Stretchlimousinenservice Mannheim
Hochzeitshaus Boos D3, 2-3 Mannheim
Wettbüro D 3, 2, Mannheim
Mansarddach Kleinfeldstraße 38 Mannheim
Spielhalle Fackelcenter Kaiserslautern
China-Restaurant Speckweg 87 Mannheim
Spielhalle Gaußstraße 18 Lampertheim
Spielhalle Lußhardtstraße 2 Karlsdorf-Neuthard
Mehrfamilienwohnhaus Steubenstraße 5, Mannheim
Rumänisch Orthodoxe Kirche Mannheim
Kaiserstuhlring 44 Mannheim
City-Hotel Tattersallstraße 20-24 Mannheim
Mehrfamilienwohnhaus Mundenheimer Straße 135, Ludwigshafen
Hotel Am Exerzierplatz Am Exerzierplatz 4 Mannheim
Kauffmannmühle Mannheim
Körtestraße 15-17, Berlin